Avec le confinement, une nouvelle tendance est rentrée dans nos maisons : le télétravail. Qui dit télétravail dit espace de travail à domicile.
Marre d’utiliser le plan de travail de la cuisine, la petite table dans la chambre ou dans l’entrée, la table basse et le canapé du salon comme lieu de travail ? L’architecture de la maison doit en tenir compte. Le bureau doit être à nouveau pensé comme pièce maitresse d’une maison ! Le bureau peut également servir pour l’école à la maison pour les enfants !
Un petit espace de travail = un grand soulagement
Une mezzanine ou quelques m² suffisent à créer un cadre de travail dans un coin cozy, pratique pour travailler et ‘’indépendant’’ si possible dans votre habitation. Avoir votre espace de travail isolé du bruit extérieur est aujourd’hui un avantage, il peut même parfois être agréable de travailler avec une verrière fleurie donnant sur la pièce de vie, grâce une belle vue jardin…
Dernièrement, nos concepteurs ont intégré ce besoin de bureau à part ou d’espace bureau dans nos dernières réalisations et perspectives de maisons individuelles. Souvent à la demande de nos clients mais aussi grâce à l’expertise de nos équipes qui exploitent au mieux l’espace et les plans.
Un bureau à part d’une taille suffisante, dont vous n’auriez plus l’utilité plus tard, pourra toujours se transformer à l’avenir en dressing ou en chambre bébé.
Découvrez quelques réalisations de plan Berthelot Constructions en Loire-Atlantique (44) !

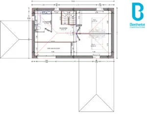
Plan maison Berthelot Constructions avec bureau à Treillières (44)

Plan maison Berthelot Constructions avec bureau mezzanine à Saint-Léger-les-Vignes (44)
Vous souhaitez faire construire votre future maison avec un espace de travail dédié ? Contactez-nous !